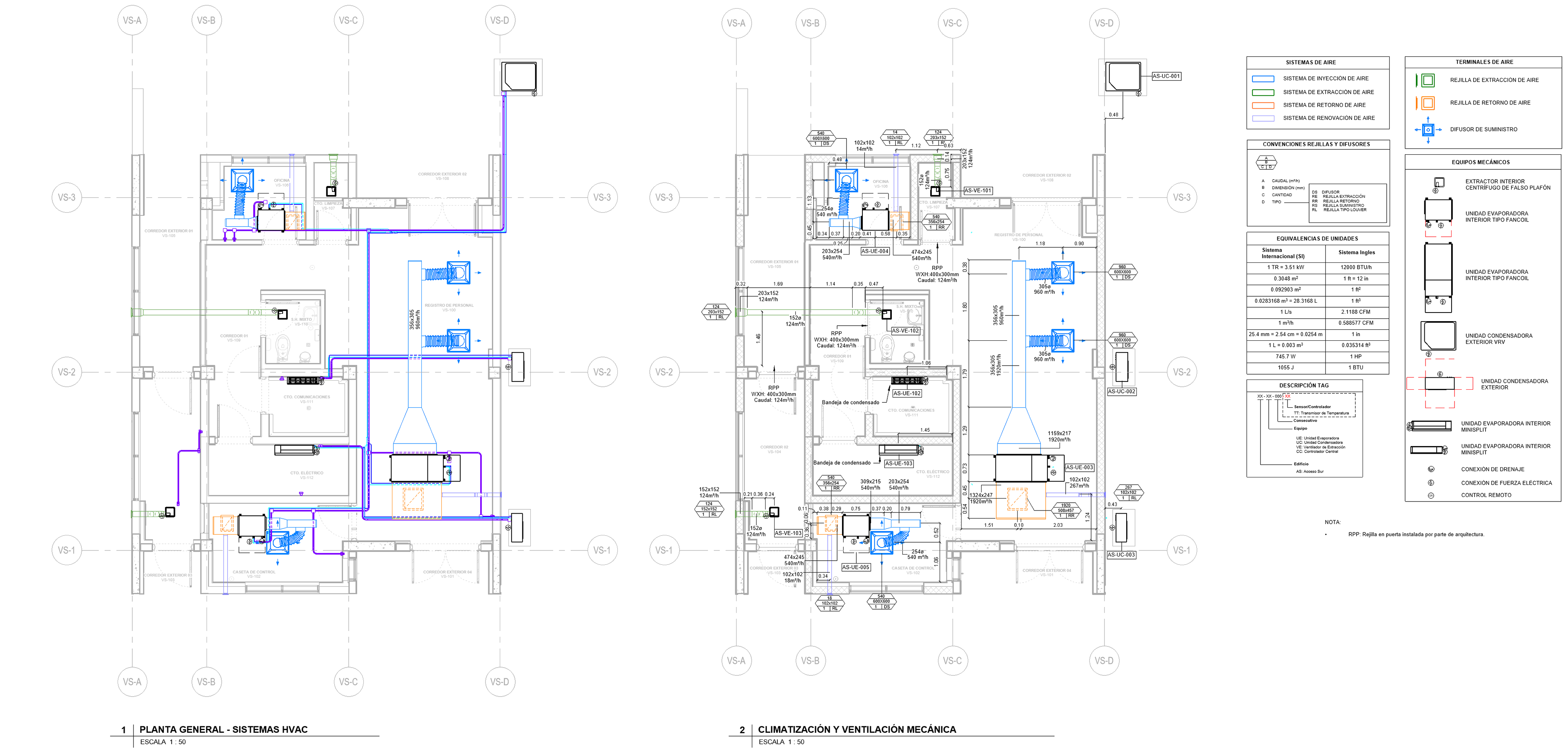
HVAC | MECANICAS
“Proyecto de modernización del Aeropuerto Internacional de Chiclayo – Lambayeque - Perú” ㅤㅤㅤControl de Acceso Sur - Edificio Principal (ETE 24)
“Proyecto de modernización del Aeropuerto Internacional de Chiclayo – Lambayeque - Perú” ㅤㅤㅤControl de Acceso Sur - Edificio Principal (ETE 24)