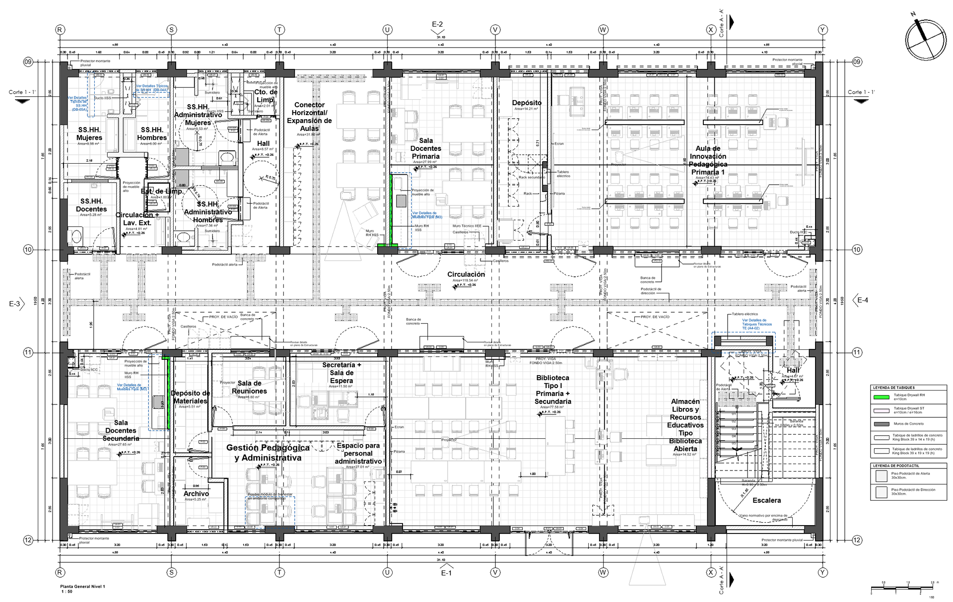
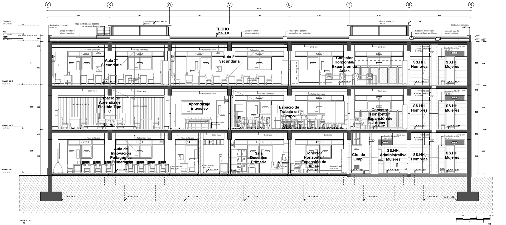
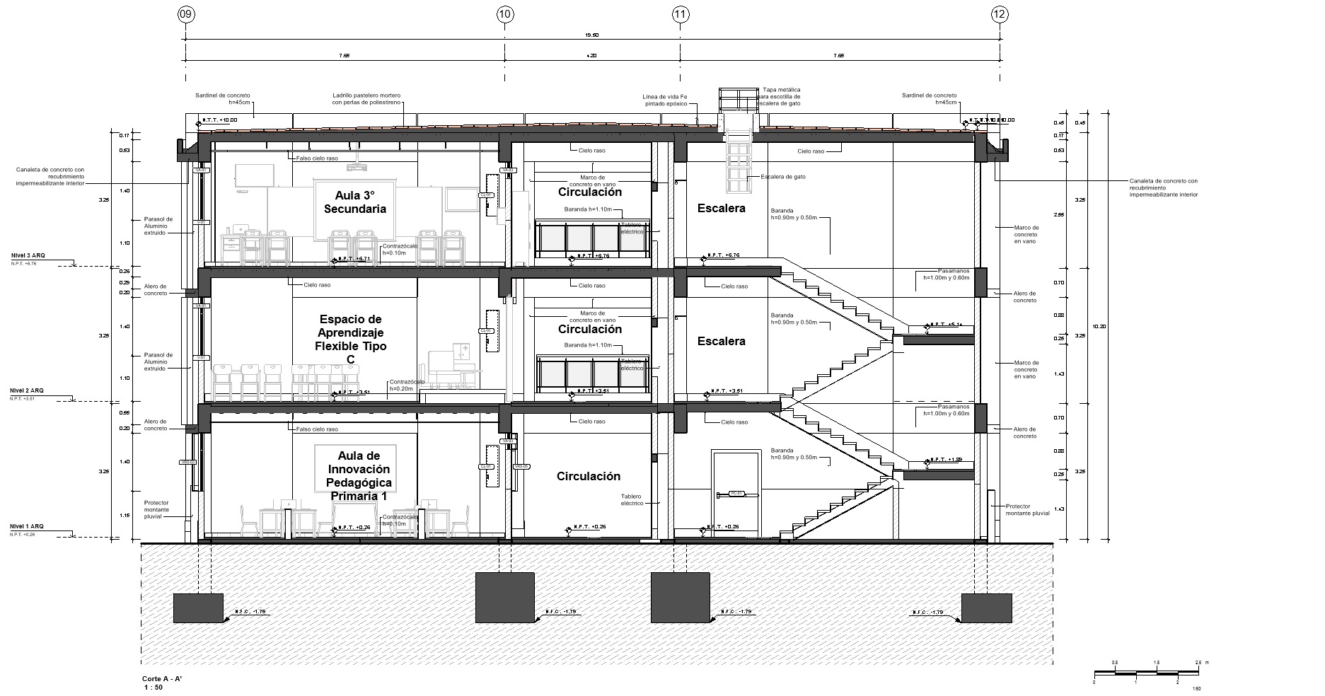
ARQUITECTURA
"Mejoramiento del Servicio Educativo del Nivel Inicial, Primaria y Secundaria de la Institución Educativa N° 101-1166 Libertador Simón Bolívar en el Distrito de Lima - Lima - Perú | Edificio 3"
"Mejoramiento del Servicio Educativo del Nivel Inicial, Primaria y Secundaria de la Institución Educativa N° 101-1166 Libertador Simón Bolívar en el Distrito de Lima - Lima - Perú | Edificio 3"